老干部活動中心,南寧 / 時境建筑
豐富的室內與室外的空間體驗。
時境建筑的老干部活動中心將竹木建筑形制轉譯為雙層幕墻的現代空間

時境建筑的廣西老干部活動中心項目結合地貌的變化,嘗試將本地傳統的竹木結構建筑原型通過當代技術轉譯為現代空間,變化的遮陽板肌理暗合了本土手工印象,創(chuàng)造了豐富的室內與室外的空間體驗。

建筑的理念根源于對項目背后的人文內涵的思考:建筑師希望要創(chuàng)造一個適于退休人員的空間,而這些退休者的青年時期大多是在文革中度過的。盡管歷史對文革的評價是負面的,但文革時期形成的“集體式生活”多少還是為那個時代留下了些溫暖的記憶。退休者對于命運多舛的時代的歸屬感是建筑師對于現代生活的孤立與冷漠做出批評的立足點。
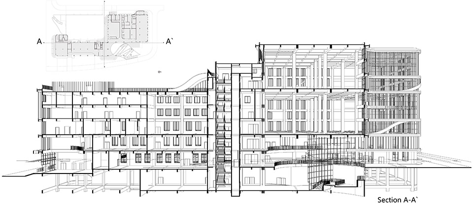
我們希望通過這個項目喚起我們的父輩及下一代的歸宿感。農業(yè)生產是那個時代“集體式生活”的標志,自然地貌便是這一代人集體記憶的背景。我們通過對建筑空間在“地面”層面上的疊加,再現了自然地貌:在城市層面上,由于本項目地處城市擴張的邊界,位于較低的洼地地形,面鄰一個保留的綠化高地,我們在建筑手法上引入一系列上下錯開的水平樓板來使這兩種極端的地貌形成空間上的對話;在建筑尺度,我們轉譯了這種拓撲關系為一種多層樓板的空間類型,例如地下室空間轉折到首層入口層,接著又垂直延伸到二層空間,并不斷交錯向上;在細部層面,我們使用了木紋鋁方通遮陽板系統將豐富的地景引入到室內,是對本土的竹材結構建筑形制所做出的回應。









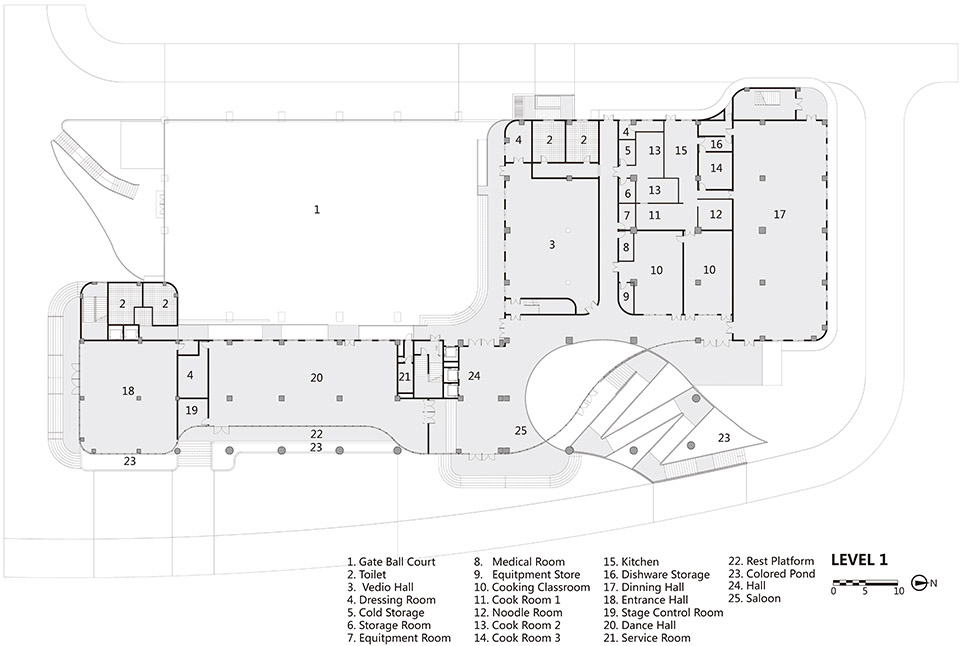
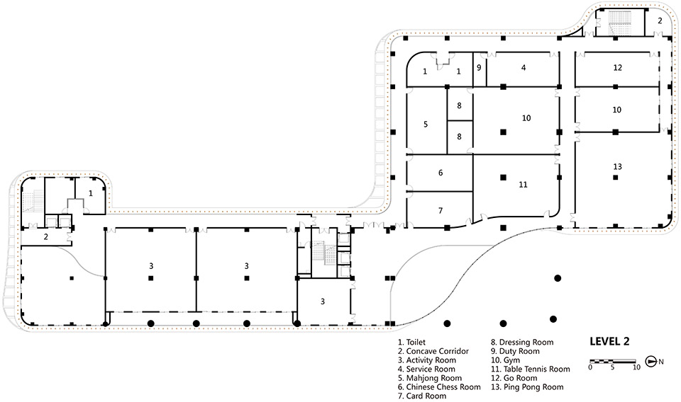
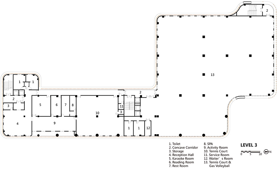
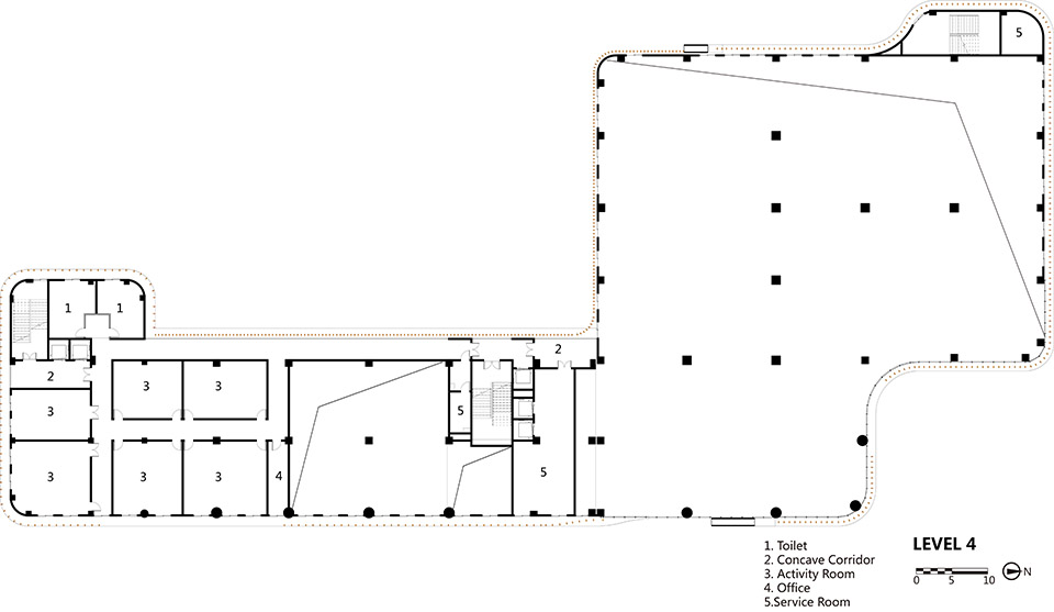
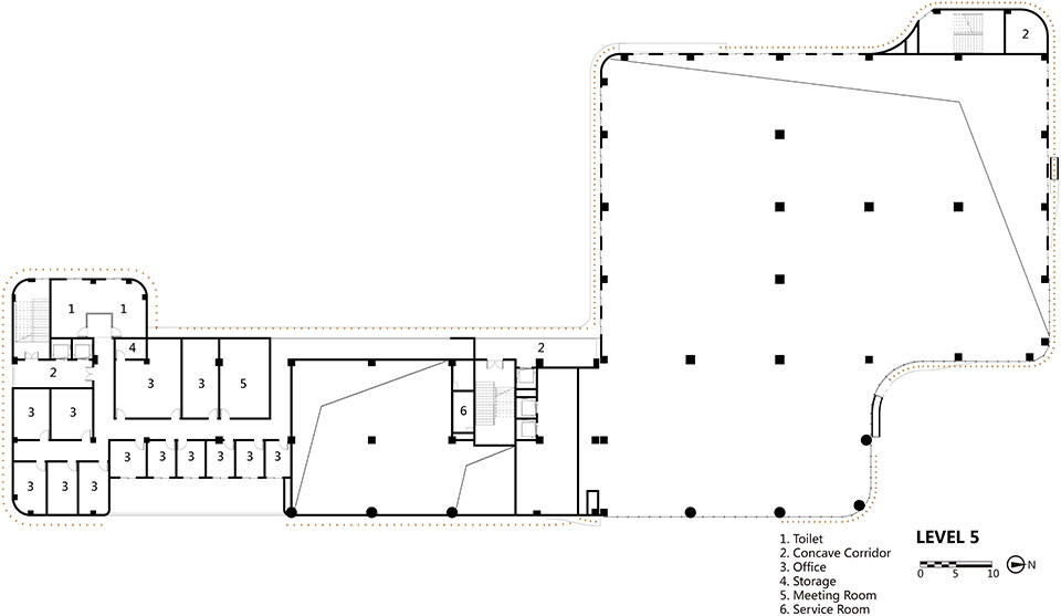
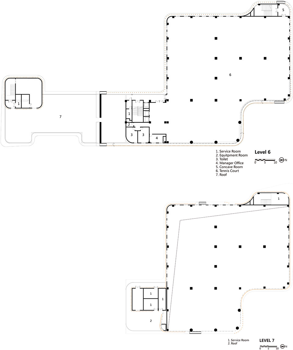
設計圖














